Great Western Railway Dean Era Coaches

 

Jack Slinn collected many coach drawings and before the drawings were sent to the HMRS I was given access to the GWR part of the collection.   Presented here are the first of over 300 drawings of GWR coaches built before the Dreadnoughts of 1904.   Thanks must go to Jonathan David who has scanned all of these drawings; many of which are too big to scan in one go, so they have been stiched together.   Also a lot of the drawings are blue printes so these have been converted to black & white.   I have had to enhance/edit a few of the drawings as the original was poor quality.

Many of the scans are over 10,000 pixels wide, so they have been resized to around 600 for this page.   Individual 1900 pixel wide drawings can be viewed on screen by clicking on the drawings.   To print high quality drawings you can select from the list of pages below, but beware those pages are slow to download because some of the drawings are big!   These pages are best printed in landscape as you will get one drawing per page.   If you want to see the original scans then please contact me.

If you are planning to use the drawings to create a model which requires a CAD drawing I suggest that you do not trace these drawings.   Rather, use the Lewis Classification for that design which will give you all of the vertical dimensions.   Then draw a pair of lines for the ends and mark on vertical centre lines of doors and windows using the dimensions on the original drawing.   Doors and most windows were a standard size (only corridor and saloon windows were variable width) so these can then be drawn.   That then just leaves the panels between to be drawn.

A1
A1 - First Class Bay Window Corridor Car Lot 551
A2
A2 - First Class Corridor Car Lot 693
A3
A3 - First Class Carriage Lot 789
A5
A5 - First Class Carriage for Royal Train Lot 839
A6
A6 - Centre Corridor First Class Lots 938, 967
A7
A7 - First Class Carriage Lots 1001, 1007
A8
A8 - First Class Carriage Lot 1021
A14
A14 - First Class Corridor Car Lot 693
C1
C1 - 3rd Class Carriage Lot 187
C2
C2 - 3rd Class Carriage Lot 207
C3
C3 - 8 wheeled 3rd Class Carriage Lot 448, 468, 472, 482, 484, 555, 558, 572, 612, 631, 659 & 671. Note that the last 5 lots had a different roof profile.
C4
C4 - 3rd Class Carriage Lot 524
C5
C5 - 3rd Class Carriage Lot 545
C6
C6 - 2nd Class & Luggage Bay Window Corridor Carriage Lot 552
71
C7 - 3rd Class Bay Window Corridor Carriage Lot 553
C7orig
C7 - 3rd Class Bay Window Corridor Carriage Lot 553 as originally built with side corridor
C8
C8 - 3rd Class Corridor Carriage Lot 692 as originally built with side corridor
C11
C9 - 2nd Class Carriage Lot 694
C11
C10 - 3rd Class Carriage Lot 724
C11-1
C11 - 2nd & 3rd Class Carriage Lot 669 & 672.
C11-2
C11 - 3rd Class Carriage Lot 669 & 747. Formerly number (7)1595 & (7)1600 2nd/3rd Composite
C12
C12 - Second Class Carrriage Lot 790 Vehicle No.243 & 244 later 5243/4. Declassified to Thirds 2729/30
C13
C13 - Third Class Carrriage Lots 795 (South Wales Corridor sets) & 791 (Ocean Specials)
C14
C14 - Second & Third Class Composite Carrriage Lot 846
C15
C15 - Second & Third Class Composite Carrriage Lot 940
also lot 867. Both converted to C16 by combining central toilets into a compartment.
C17
C17 - Third Class Carrriage Lot 905, 912, 927, 933, 999, 1020
C18
C18 - Centre Corridor Third Class Lot 936
C19
C19 - Second Class Carriage
Lots 970, 971 & 981
C17
C20 - Third Class Carriage Lot 1002 & 1022
C17
C21 - Third Carriage Lot 1003 & 1023
C17
C22 - Third Class Carriage Lots 1015, 1018, 1038 & 1053
C17
C79 - Third Class Carriage Lot 985, 826 & 932
Formerly A4 First class
D6
D6 - Luggage Third and Mail Carriage Lot 596
D6a
D6 - Brake Third altered from Composite Lot 596
D11
D11 - Brake Third Class Corridor Car (right hand) Lot 691
D13
D13 - Brake Third Class Carriage Lot 722
D16
D16 - Brake Third Class Carriage Lot 751
D17
D17 - Brake Third Class Carriage Lot 752
D18
D18 - Brake Third Lot 794
D22
D22 - Brake Third Class Carriage Lot 836B
D23
D23 - Brake Third Class Carriage Lot 836B
D29
D29 - Brake Third Class Carriage Lot 1005
D39
D39 - Brake Third Class Carriage Lot 1005
D40
D40 - Brake Second Class Carriage Lot 1006
D74
D74 - Brake Third Class Carriage Lot 870
Swindon July 1921
Lot 870 Nos.3380 3374
formerly D25 with lookouts
D77
D77 - Brake Third Class Carriage Lot 904
formerly D28 with lookouts
E1a
E1 - Composite Carriage Lot 122
No. 282
E1b
E1 - Composite Carriage Lot 122
E2
E2 - Composite Carriage Lot 147
E3
E3 - Composite Carriage Lot 147
E5
E5 - NG Composite Carriage Lot 177
E6
E6 - Composite Carriage Lot 194

Nos 434 to 439 & 444 - 445

E7
E7 - NG Composite Carriage Lot 194
E8
E8 - NG Tri Composite Carriage (Windsor) Lot 200
E9
E9 - NG Tri Composite Carriage Lot 201
E10
E10 - NG Composite Carriage
Lot 206 No.650 to 657
with luggage
E11
E11 - NG Composite Carriage
Lot 206 No.658 to 661
with luggage & lavatories
E12
E12 - Composite Carriage Lot 256
E14
E14 - NG Composite Carriage
Lot 273 No.746 to 755
with luggage & lavatory
E15
E15 - NG Tri Composite Carriage
Lot 273 No.756 to 763
with luggage
E16
E16 - NG Tri Composite Carriage
Lot 273 No.764 to 785
Lot 309 No.806 to 815
E15
E17 - NG 1st 2nd Composite Carriage (with lavatories)
Lot 411
E19-1
E19 - NG Tri Composite Carriage
Lot 414 Nos. 705 to 710
E19-2
E19 - NG Tri Composite Carriage
Lot 414 Nos. 115, 413, 597, 598, 705 & 707
Lot 460 - unclear
E19-3
E19 - NG Tri Composite Carriage
Lot 460 Nos. 1025, 1027
E20
E20 - Tri Composite Carriage
Lot 414 No. 706
E22
E22 - NG 8 Wheeled Tri Composite Carriage with Luggage
E23
E23 - Tri Composite Carriage
Lot 461
E25
E25 - Tri Composite Carriage
(with Double Coupé )
Lots 478, 466, 483
E26
E26 - Composite Carriage
Lot 470A
E27
E27 - Tri Composite Carriage (with Lavatories)
Lots 470C, 544
E28
E28 - Composite Carriage
Lot 470B
E29
E29 - Tri Composite Carriage
Lot 471
No.1296
E30
E30 - Tri Composite Carriage
(with Single Coupé )
Lot 487
E31
E31 - N.G. Tri Composite Carriage
(with Lavatories)
Lot 554
E32
E32 - N.G. Composite Carriage
Lot 557
E34
E34 - N.G. First & Second Composite Carriage
(with Luggage & Lavatories)
Lot 614
E35
E35 - Tri Composite Carriage
with Luggage & Lavatories
Lot 630
E36
E36 - Tri Composite Carriage
with Luggage & Lavatories
Lot 630
E37
E37 - N.G. Tri Composite Carriage
Lot 634
E38
E38 - First & Second Class Corridor Car
Lot 695
E39
E39 - Tri Composite Carriage
Lot 697
E40
E40 - Tri Composite Carriage
Lot 729
E41
E41 - Tri Composite Carriage
Lot 742
E42
E42 - Tri Composite Carriage
Lot 748
E43
E43 - Tri Composite Carriage
Lot 749
E44
E44 - First & Third Composite Carriage
Lot 759
E45
E45 - Tri Composite Carriage
Lot 765
No.1244 & 1245
E46
E46 - First & Second Composite
Lot 792
E47
E47 - First & Second Composite
Lot 796
E48
E48 - Tri Composite
Lot 798
E48
E48 - Tri Composite Carriage
Lot 798
Nos. 7220 to 4 & 7226
E49
E49 - Tri Composite
Lot 802
E50
E50 - Tri Composite Carriage
Lot 803
E51
E51 - Tri Composite Carriage
Lot 813
E52
E52 - First & Second Composite Carriage
Lot 814
E52
E53 - First & Second Composite Carriage
Lot 831
E55
E55 - Tri Composite Carriage
Lot 832
E56
E56 - Tri Composite Carriage
Lot 837
E57
E57 - Tri Composite Carriage
Lot 850
E58
E58 - Branch Tri Composite Carriage
Lot 873
E59
E59 - Tri Composite Carriage
Lot 882
E60
E60 - Tri Composite Carriage
Lot 884
E61
E61 - Tri Composite Carriage
Lot 885
E62
E62 - Tri Composite Carriage
Lots 889 & 906
Nos. 1186 to 1188 & 1150 to 1152
E63
E63 - First & Second Composite Carriage
Lot 903
E64
E64 - First & Second Composite Carriage
Lot 910
E68
E68 - First & Second Composite Carriage
Lot 928
E72
E72 - Tri Composite Carriage
Lot 983
E73
E73 - First & Second Composite Carriage
Lots 987, 994
F1
F1 - NG Slip Tri Composite Carriage
Lot 232 & 280
Lot 280 BG Iron Underframe
F2
F2 - NG Slip Composite Carriage
Lot 360
Nos. 209 & 210
F3
F3 - Slip Tri Composite Carriage
Lot 409 No.494
F5
F5 - NG Double Slip Tri Composite Carriage
Lot 601
F9
F9 - Tri Composite Carriage (Double Slip)
Lot 841
F10
F10 - Tri Composite Carriage (Double Slip)
Lot 844
F11
F11 - Slip Tri Composite Carriage
Lot 886
G3
G3 - Family Saloon
Lot 745
G6
G6 - First Class Saloon
Lot 980
G18
G18 - Third Class Saloon
Lot 984
G30
G30 - Family Carriage
Lot 628
G31
G31 - Family Carriage
Lot 804
G32
G32 - Family Carriage
Lot 924
G33
G33 - Family Carriage
Lot 950
Note: Arrangements are made in these carriages for Suspended Invalid Couch
Gxa
NG Royal Saloon
Gxc
Old BG Royal Saloon converted NG
J4a
J4 - Tri Compo Sleeper
Lots 669, 672
J4b
J4 - Tri Compo Sleeper
Lot 669
J4c
J4 - Tri Compo Sleeper
Lot 747
J4d
J4 - Tri Compo Sleeper
Lot 747
J4e
J4 - Tri Compo Sleeper
Lot 672 No.1599, lot 747 No.1595
JxC8
Tri Compo Sleeper
No.1582 & 1583
Tri-Composite Sleeper history
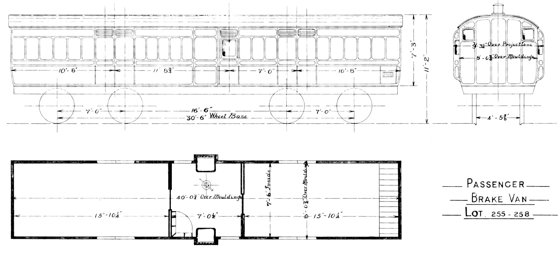
K1
K1 - Passenger Brake Van
Lots 255 & 258
K2
K2 - Passenger Brake Van Lots 382,288, 307, 312
the drawing only represents the last 6 coaches of lot 382
K4
K4 - 8 wheeled Passenger Brake Van
K5
K5 - Brake Van for Corridor Train
Lot 645
K5-1
K5 - Passenger Brake Van
Lot 645 - no.1051 Swindon May 1915
K6
K6 - Brake Van
Lot 660
K7
K7 - Brake Van
Lot 660
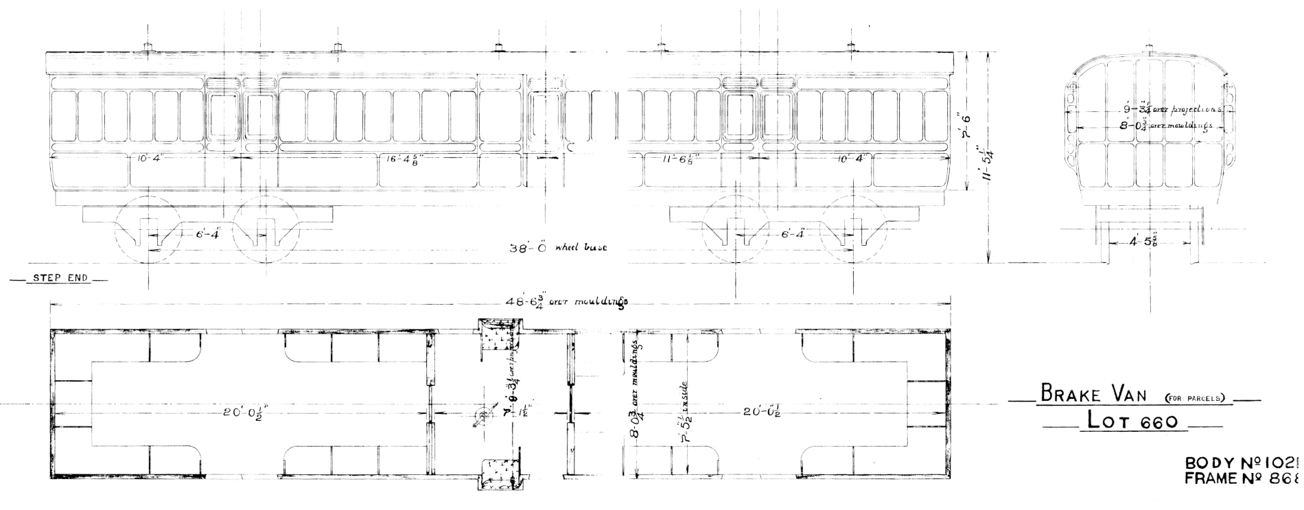
K8
K8 - Brake Van (for parcels)
Lot 660
K9
K9 - Brake Van
Lot 793
K10
K10 - Brake Van
Lot 793
K11
K11 - 8 wheeled Passenger Brake Van
Lot 812
K12
K12 - Brake Van for Royal Train (Left hand)
Lot 838
K13
K13 - Brake Van for Royal Train (Right hand)
Lot 838
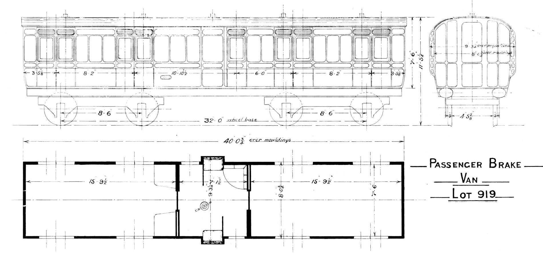
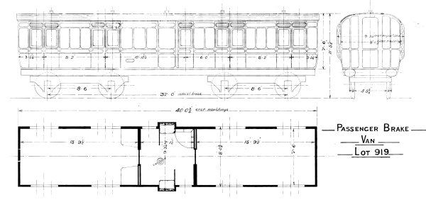
K16
K16 - Passenger Brake Van
Lot 919
K32
K32 - Passenger Brake Van
Lot 258 no.884
L1a
L1 - Mail Van
Lot 238 nos. 143, 144, 145
L1b
L1 - Mail Van
Lot 238 nos.847, 848, 849
L2
L2 - NG Mail Van
No.71 & 72
L3
L3 - Mail Van
Lot 465 no.840
L4/5
Composite Post Office
Lot 465
1 became L4
LX1
NG Composite Mail Van
Lot 465
LX3
L4 - Mail Van
Lot 465 no.842
L6
L6 - NG Compostite Post Office
Lot 518
L6-1
L6 - NG Compostite Post Office
Lot 518
L6-2
L6 - Mail Van
Lot 518 no.845
L7
L7 - NG Open Parcel Van
Lot 485 & 520
L8
L8 - NG Mail Van
Lot 579
L9
L9 - NG Parcel Sorting Van
Lot 604
L10
L10 - NG Foreign Mail Van
Lot 607
L11
L11 - Mail Van
Lot 607 nos.864 & 865
L15
L15 - Mail Van
Lot 258 no.884
L16
L16 - GWR Mail Van
Lot 465 no.840
LX2
Mail Van
Lot 465 no.841 & Lot 598 no.838
M1
M1 - Newspaper Van
Lot 377 no.856, 857 & 858
M2
M2 - Foreign Mail Van
Lot 444
M3
M3 - Newspaper Van
Lot 493 no.866
M4
M4 - Newspaper Van
Lot 550
M7
M7 - Newspaper Van
Lot 960 & 995 vehicle nos.868, 873

Under Construction.  This project is definitely work in progress. If you would like to receive an email when I update these pages please contact me in the Carriage Shed.

© 2019 - Richard Spratt - all rights reserved
GWR Coaches -Jack Slinn Colection -- www.GWRCoaches.org.uk -- Richard Spratt & Jonathan David 2019