Great Western Railway Dean Era Coaches

J4a
J4 - Tri Compo Sleeper
Lots 669, 672
J4b
J4 - Tri Compo Sleeper
Lot 669
J4c
J4 - Tri Compo Sleeper
Lot 747
J4d
J4 - Tri Compo Sleeper
Lot 747
J4e
J4 - Tri Compo Sleeper
Lot 672 No.1599, lot 747 No.1595
JxC8
Tri Compo Sleeper
No.1582 & 1583
K1
K1 - Passenger Brake Van
Lots 255 & 258
K2
K2 - Passenger Brake Van Lots 382,288, 307, 312
the drawing only represents the last 6 coaches of lot 382
K4
K4 - 8 wheeled Passenger Brake Van
K5
K5 - Brake Van for Corridor Train
Lot 645
K5-1
K5 - Passenger Brake Van
Lot 645 - no.1051 Swindon May 1915
K6
K6 - Brake Van
Lot 660
K7
K7 - Brake Van
Lot 660
K8
K8 - Brake Van (for parcels)
Lot 660
K9
K9 - Brake Van
Lot 793
K10
K10 - Brake Van
Lot 793
K11
K11 - 8 wheeled Passenger Brake Van
Lot 812
K12
K12 - Brake Van for Royal Train (Left hand)
Lot 838
K13
K13 - Brake Van for Royal Train (Right hand)
Lot 838
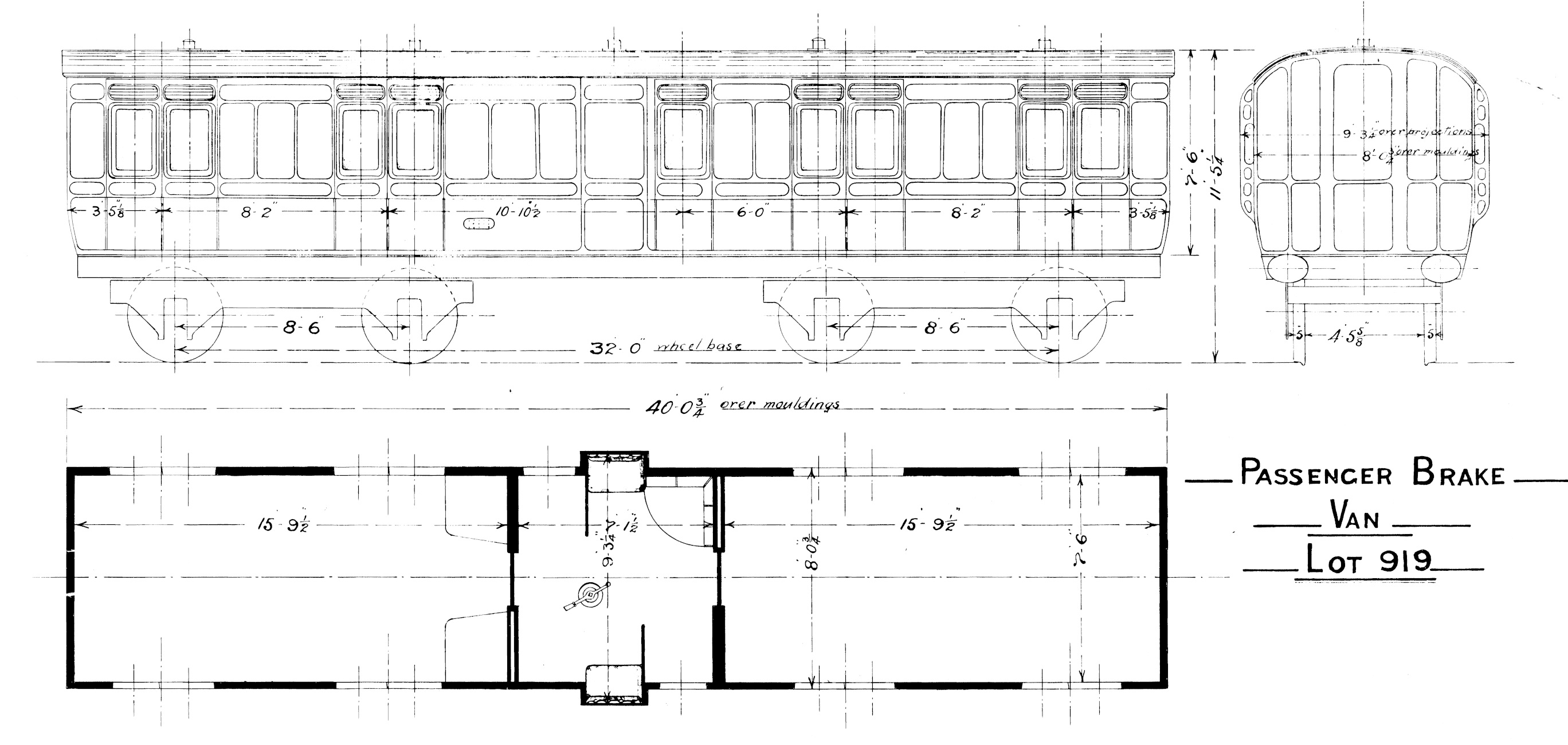
K16
K16 - Paddenger Brake Van
Lot 919
K32
K32 - Passenger Brake Van
Lot 258 no.884
L1a
L1 - Mail Van
Lot 238 nos. 143, 144, 145
L1b
L1 - Mail Van
Lot 238 nos.847, 848, 849
L2
L2 - NG Mail Van
No.71 & 72
L3
L3 - Mail Van
Lot 465 no.840
L4/5
L4 or L5 - Compostite Post Office
Lot 465
LX1
NG Composite Mail Van
Lot 465
LX3
Mail Van
Lot 465 no.842
L6
L6 - NG Compostite Post Office
Lot 518
L6-1
L6 - NG Compostite Post Office
Lot 518
L6-2
L6 - Mail Van
Lot 518 no.845
L7
L7 - NG Open Parcel Van
Lot 485 & 520
L8
L8 - NG Mail Van
Lot 579
L9
L9 - NG Parcel Sorting Van
Lot 604
L10
L10 - NG Foreign Mail Van
Lot 607
L11
L11 - Mail Van
Lot 607 nos.864 & 865
L15
L15 - Mail Van
Lot 258 no.884
L16
L16 - GWR Mail Van
Lot 465 no.840
LX2
Mail Van
Lot 465 no.841 & Lot 598 no.838
M1
M1 - Newspaper Van
Lot 377 no.856, 857 & 858
M2
M2 - Foreign Mail Van
Lot 444
M3
M3 - Newspaper Van
Lot 493 no.866
M4
M4 - Newspaper Van
Lot 550
M7
M7 - Newspaper Van
Lot 960 & 995 vehicle nos.868, 873

Under Construction.  This project is definitely work in progress. If you would like to receive an email when I update these pages please contact me in the Carriage Shed.

© 2019 - Richard Spratt - all rights reserved
GWR Coaches -Jack Slinn Colection -- www.GWRCoaches.org.uk -- Richard Spratt & Jonathan David 2020