Great Western Railway Dean Era Coaches

Note: After 1907 first class coaches had 8000 added to their number and composites had 6000 added to their number.

Diagram Dimensions
Length x Width
Wheelbase
Lewis Class. No. Built Numbers
Conversions / Withdrawn Date
A4

7 compartment first

 

C79

7 compartment third

50' x 8'6

10' Dean bogies

42' wheelbase

CEE7W 20 built in 1896

10 built in 1899

10 built in 1901

(8)263 to (8)282

(8)284 to (8)293

(8)304 to (8)313


R Spratt collection, C79 1987


JN Slinn collection

C79 - Third class between 1938 and 1941

325 to 329, 331 to 333

334 to 340

1981 to 1988

337, ex 8288, was converted to DW286 in 1952

338, ex 8291, was converted to Camping Coach 9910 in 1952 and survived until 1964.

All first class coaches were condemned by the end of 1948. The last 3rd class coach was condemned in 1955, but most only lasted until 1950 at best.

Diagram C1 Low Roof coach
C2

7 compartment third

40' x 8' CAA12N 10 built in 1880 1235 to 1237, 1239 to 1245
JN Slinn collection


R Spratt collection

1236 & 1237 were converted to Broad Gauge in 1888 and back to Standard Gauge in 1892.

1235 went to R&SB (third 68) returned to GWR in 1923 became third 4219
1239 went to R&SB (third 69) returned to GWR in 1923 became third 4220, both cond. 1931

1264 became service vehicle 14927

All condemned between 1929 and 1931.

C3a

8 compartment third

46' x 8'

6'4 Dean bogies

36' wheelbase

CAE7N 20 built in 1890 as Standard Gauge bodies on Broad Gauge frames Broad Gauge 576 to 595
-
Standard Gauge 2111 to 2130


JN Slinn collection


© HW Burman

1767 converted to Parcels Van M28 ca.1940

1876 converted to Engineering Department Workman's Coach 80923 in 1942, cond.1950

Most condemned by 1948, except:

1766 - 1932

1768, 1772 - 1933

1769 - 1934

1770 - 1936

1771 - 1946

1839, 1912, 1917 - 1948

1881 - 1953.

10 built 1891 as Standard Gauge bodies on Broad Gauge frames

Broad Gauge 600 to 609
-
Standard Gauge 2131 to 2140

20 built in 1889

1753 to 1772
30 built in 1890 as Standard Gauge bodies on Broad Gauge frames

Broad Gauge 610 to 639
-
Standard Gauge 2141 to 2170

20 built in 1890

1779 to 1795
20 built in 1891

1839 to 1858
80 built in 1892 1859 to 1938
C3b

8 compartment third

46' x 8'

6'4 Dean bogies

36' wheelbase

CEE7N 10 built in 1891 as Standard Gauge bodies on Broad Gauge frames Broad Gauge 689 to 698
-
Standard Gauge 2201 to 2210


R Spratt collection
Most condemned by 1948, except:
2263 - 1949
2224 - 1957
20 built in 1892

2211 to 2230
14 built in 1892

2251 to 2264
20 built in 1892

2265 to 2284
8 built in 1893 2285 to 2292
C4

7 compartment third

40' x 8'

6'4 Dean bogies

29'6 wheelbase

CAE7N 40 built in 1889 1799 to 1838
JN Slinn collection


© TL Jones

1799, 1823, 1824, 1831, 1836 & 1837 converted to Workman's, all in 1933, except 1823 in 1936.

1808 to R&SB 56 in 1914. Renumbered 4207 when returned in 1922.

1815 converted to Parcels Van M27 in 1940

1823 'Painted brown' - 1941

1818, 1821 - 1932

1800, 1805, 1812, 1813, 1822, 1826, 1828, 1832, 1834, 4207 - 1933

1804, 1806, 1807, 1811, 1820, 1830 - 1934

1814, 1817, 1825, 1829, 1835, 1836 - 1935

1801, 1810, 1816, 1827 - 1936

1799, 1803, 1833 - 1937

1802, 1809, 1819, 1824, 1837, 1838 - 1938

1831 - 1939

1823 - 1944

C5

8 compartment third

48'6 x 8'

6'4 Dean bogies

38' wheelbase

CEE7N 6 built in 1890 as Standard Gauge bodies on Broad Gauge frames Broad Gauge 659 to 664
 
Standard Gauge 2171 to 2176

JN Slinn collection
All condemned by 1948.
Diagrams C6 to C9 Corridor Coaches
C10

8 compartment third

46'6 x 8'

8'6 Dean bogies

38'6 wheelbase

CEE7N 20 built in 1893 2843 to 2862
JN Slinn collection


R Spratt collection, 3113

1181 converted to Breakdown Mess Van 172

1185, 2938 converted to Engineering Department Van 14930, 14604

1208, 1941, 2997, 3031 converted to Mess & Travelling Vans 14196, 14198, 14246, 14218

1243, 1266, 3030 converted to Pilot Vans 14806, 14209, 14808

1257, 3032 converted to Mess & Tool Vans 14222, 238

1971 & 3026 used on Glyncorrwg, North Rhondda line from 1952

2925, 2931, 2945, 3005, 3067 & 3131 converted to M28 ca.1940

3108 converted to Mess Van

Most were condemed by 1950, with approximately ¼ being condemed in 1948 and 1949:-

1210, 1233, 1959, 3092 - 1950

1180, 1259, 3032, 3091, 3215 - 1951

3006, 3033, 3113 - 1953

3204 - 1954

1219 - 1955

3026 - 1957

1209, 1971 -1958

25 built in 1894 2908 to 2932
30 built in 1895 in two batches 2933 to 2965

1944 to 1953

90 built in 1896 in four batches 2993 to 3012

3013 to 3032

3033 to 3052

3053 to 3082

60 built in 1897 in three batches 3083 to 3112

3113 to 3132

3183 to 3192

10 built in 1898 1954 to 1959, 1969, 1971 to 1973
10 built in 1899 3193 to 3202
55 built in 1900 in five batches 3203 to 3217
20 built in 1901 1188 to 1192, 1194, 1199, 1202, 1203, 1205, 1208, 1209 to 1211, 1214 to 1217, 1219, 1220
10 built in 1902 1172, 1173, 1179, 1180 to 1182, 1184 to 1187
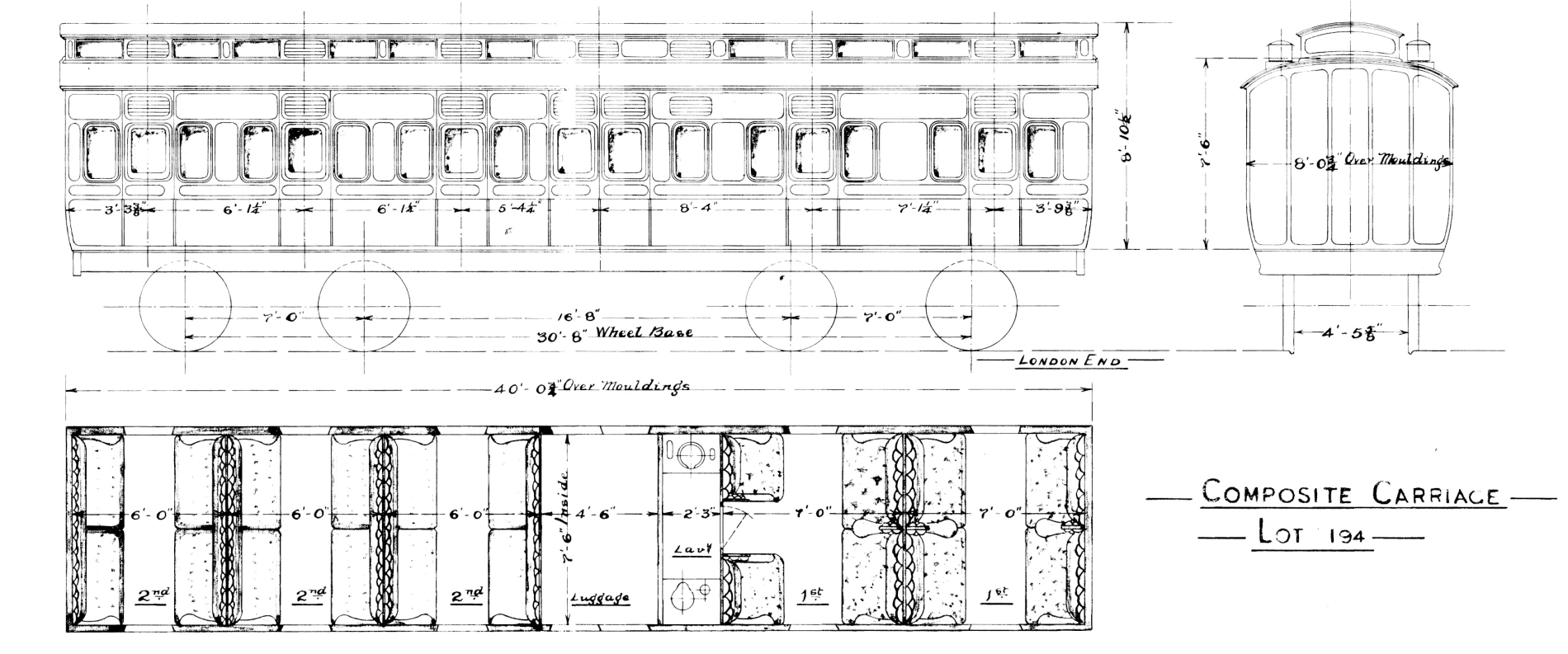
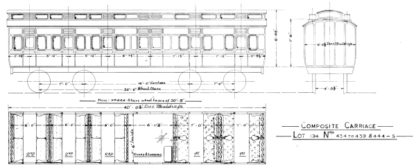
C14

8 compartment second/third composite with 6 lavatories

56' x 8'6

10' Dean bogies

48' wheelbase

CEE7W 10 built in 1897 (6)955 to (6)964
Thirds 1053 to 1062

JN Slinn collection
Condemned by end of 1948.
C19

8 compartment second - later third class

50' x 8'6

10' Dean bogies

42' wheelbase

CEE7W 30 built in 1901 in three batches (5)260 to (5)274

(5)231 to (5)240

(5)275 to (5)279


JN Slinn collection


© HC Casserley 96342, DW14293

Third class numbers after 1912

1351, 1353 to 1355, 1359, 1361 to 1364, 1366 to 1369, 1371, 1373

1331, 1333, 1336 to 1339, 1341 to 1343, 1349

1375, 1376, 1379, 1382, 1383

1331 converted to Mess & Travelling Van 14235

1333 converted to M31 in 1941

1339 used on Glyncorrwg, North Rhondda line from 1952

1342 converted to Sleeping & Messing Van 239

1353, 1379 converted to Engineering Department Vans 14977, 14978

1355 converted to Engineering Department Mess & Tool Van 14115

1361 & 1367 converted to Engineering Department Mess & Travelling Van 14204 & 14203

1376 converted to Pilot Van 14192

C22

8 compartment third

46'6 x 8'6

8'6 Dean bogies

38'6 wheelbase

CEE7W 10 built in 1902

10 built in 1903

25 built in 1903

10 built in 1904

1156, 1159 to 1162, 1164, 1165, 1167, 1170, 1177

1302 to 1306, 1311, 1316, 1319, 1320,1322

1330, 1332, 1335, 1340, 1344, 1346, 1352, 1356, 1357, 1360

1345, 1347, 1350, 1358, 1372, 1375, 1377, 1378, 1380, 1381


JN Slinn collection
1303, 1322 1375 converted to Mess & Tool Vans 14278(in 1946), 14292, 14293

1305 converted to M28 in 1940

1306 converted to Engineering Department Workman's Coach 14220 in 1948

1304 converted to Dowlais Workman's with pedestal brake fitted in one compartment in 1939

1319, 1318 converted to Pilot Vans 14522, 14807

1302 - 1938

1304 - 1948

C23

10 compartment third

58' x 8'6

10' Dean bogies

48' wheelbase

CEE7W 35 built in 1903

5 built in 1904

20 built in 1904

3248 to 3272

1001 to 1005

1009 to 1028


R Spratt collection, 3269
D2

6 compartment centre brake third with luggage

40' x 8'

CAA12B

then

CAE12CN

6 built in 1880

6 built in 1881

12 built in 1882 in 2 batches

all built as Broad Gauge coaches and converted to Standard Gauge in 1891/2

BG 431 to 436
2087 to 2092

BG 437 to 442
2093 to 2098

BG 444 & 445
2099 & 2100

BG 446 to 455
2101 to 2110


© Mark Vrettos 2015
Compartments are:
3x 3rd, Guard & luggage, 3x 3rd
1928 - 2097

1929 - 2088, 2091, 2099, 2100, 2107, 2109, 2110

1930 - 2087, 2090, 2093 to 2095, 2101, 2102, 2106

1931 - 2092, 2096, 2098, 2103

1932 - 2089, 2105, 2108

1933 - 2104

D3

6 compartment centre brake third with luggage

46'6 x 8'

8'6 Dean bogies

CAA12N 30 built in 1884 1569 to 1598
D3 No.1582 after accident at Henley-on-Thames in 1911, R Spratt collection
Compartments are:
3x 3rd, Guard & luggage, 3x 3rd
1911 - 1582

others converted to D64 between 1920 and 1925 1931 - 1933

D4

7 compartment centre brake third

48'6 x 8' CAE7N 30 built in 1889

24 built in 1891 as Standard Gauge bodies on Broad Gauge frames

1723 to 1752

Broad Gauge
665 to 684

Standard Gauge
2177 to 2200


D4 at Paddington ca 1907, R Spratt collection
All converted to D54 between 1911 and 1918
D6

6 compartment brake third
with mail compartment

then

7 compartment brake composite
with 2 lavatories

then

7 compartment brake third
with 2 lavatories

48'6 x 8'

8'6 Dean bogies

38' wheelbase

CAE7N 2 built in 1891 2081 & 2082
JN Slinn collection


JN Slinn collection

Mail compartment converted to a pair of lavatories and third class compartment, total seating 56, similar to the lower diagram, 2081 no date, 2082 in 1896 when it was also renumbered 2080.

There is no evidence in the carriage registers that either had a first class compartment suggesting it was either short-lived or it didn't happen.

1932 - 2080

Guard's projections removed became diagram D71 in 1921

1935 - 2081

D7

5 compartment brake third

48'6 x 8'

6'4 Dean bogies

38' wheelbase

CEE7N 10 built in 1890

4 built in 1891

2231 to 2240

2809 to 2812


D7, © Real Photos
1924 - 2239

1932 - 2231, 2237

1933 - 2235

1934 - 2234

1935 - 2231, 2236, 2238, 2240

1936 - 2233, 2812

1937 - 2809

1938 - 2811

1940 - 2810

D8

3 compartment brake third

48'6 x 8'

8'6 Dean bogies

38' wheelbase

CEE7N 10 built in 1890

4 built in 1891

2241 to 2250

2801 to 2804

2245 was built in 1895


D8, no.2803, R Spratt collection


D8, possibly D13 or D38, © GH Soole 1186

1895 - 2245

1932 - 2243, 2244, 2247

1933 - 2241, 2802, 2804

1935 - 2248

1936 - 2250, 2803

1938 - 2245, 2246, 2249

1943 - 2801

1946 - 2242

D9 and D89

4 compartment brake third

48'6 x 8'

6'4 Dean bogies

38' wheelbase

CEE7N 4 built in 1892 2805 to 2808
D89, no.2805, R Spratt collection
1936 - 2806

1948 - 2808

Guards lookouts removed became D89

1938 - 2805, 2807

D13 and D102

3 compartment brake third

50' x 8'

8'6 Dean bogies

42' wheelbase

CEE7N 5 built in 1894 2818 to 2822
JN Slinn collection
1932 - 2818, 2821

1936 - 2819, 2820

1937 - 2822

Guards lookouts removed became D102

1936 - 2820 (converted in 1926)

D14 and D76

4 compartment brake third

50' x 8'

8'6 Dean bogies

42' wheelbase

CEE7N 5 built in 1893

25 built in 1894

30 built in 1895 in two batches

2813 to 2817

2883 to 2907

2973 to 2982

2953 to 2972


R Spratt collection, 2894


R Spratt collection, 2963 with lookout removed


R Spratt collection, leaving Paddington in 1929

2813 converted to composite (6)863 in 1894, converted back in 1910 as 2396
2815 converted to composite (6)864 in 1894, converted back in 1910 as 2397
2959 converted to composite (6)865 in 1894, converted back in 1910 as 2398
2960 converted to composite (6)866 in 1894, converted back in 1910 as 2399
2971 converted to composite (6)719 in 1906, converted back in 1912 as 2971

2816, 2886, 2888, 2892, 2894, 2895, 2957, 2982 converted to Workman's Coaches

1932 - 2396

1936 - 2891, 2971, 2974, 2977

1937 - 2883, 2890, 2900, 2962, 2976, 2979

1938 - 2397, 2398, 2814, 2816, 2817, 2884, 2887, 2888, 2896, 2898, 2901, 2902, 2906, 2953, 2955, 2958, 2964, 2969, 2972, 2981

1939 - 2904, 2905, 2907

1940 - 2885, 2886, 2897, 2956, 2957, 2973, 2978, 2980

1945 - 2889

1947 - 2892

1948 - 2907

1949 - 2954

1950 - 2894, 2982

Guards lookouts removed became D76

1931 - 2966

1936 - 2903

1937 - 2893

1938 - 2965, 2967, 2970

1939 - 2968

1940 - 2399

1949 - 2895, 2963

1951 - 2961

D21 and D96

4 compartment brake third

50' x 8'6

42' wheelbase

CEE7W 10 built in 1897 3391 to 3400 c/f D24 but only 1 set of double doors in luggage van 3399 converted to Parcels Van M29 in 1940

1938 - 3391, 3395 to 3397

1940 - 3394, 3400

1948 - 3398

1949 - 3393

Guards lookouts removed became D96

1938 - 3392 (converted in 1930)

D24 and D75

4 compartment brake third

50' x 8'6

10' Dean bogies

42' wheelbase

CEE7W 20 built in 1897 in two batches

30 built in 1899 in 3 batches

15 built in 1900 in 2 batches

10 built in 1902

12 built in 1903

3381 to 3290

3341 to 3350

3321 to 3330

3311 to 3320

3401 to 3410

2301 to 2306, 2864, 2881, 2959 & 2960

2307 to 2311

2317 to 2326

3455 to 3466


D24, No.3385  R Spratt collection


D24, No.3458  © HMRS AEL430

2317 converted to Engineering Mess Room 80955

3329 altered to brake composite 976 (2x 2nd and 2x 3rd class compartments) in 1904 and back to brake third in 1909

3458 converted to Pilot Van 14541

1900 - 3390        1911 - 3387, 3461        1933 - 2303

1936 - 2317, 3346        1937 - 3408

1938 - 2305, 2309, 2319, 2326, 2959, 2960, 3311, 3314, 3321, 3323, 3327, 3342, 3345, 3347, 3348, 3350, 3381, 3384, 3386, 3401, 3404

1939 - 2311, 3325, 3328, 3341, 3385, 3457

1940 - 2304, 2864, 3318, 3319, 3322, 3326, 3329, 3344, 3349, 3388, 3402, 3405, 3409

1942 - 3456        1943 - 3320        1944 - 2320, 2324

1945 - 2881, 3313        1946 - 2323, 3389        1947 - 3459

1948 - 2306, 2310, 2318, 2321, 2322, 3330, 3382, 3406, 3462, 3466

1949 - 2301, 2308, 2325, 3314, 3317, 3410, 3458, 3460, 3464, 3465

1950 - 3403

Guards lookouts removed became D75

1938 - 3383, 3407        1939 - 3346        1940 - 3463

1947 - 2302        1948 - 3316, 3324        1949 - 2307

1950 - 3455        1951 - 3315

D37

5 compartment brake third

50' x 8'6

10' Dean bogies

42' wheelbase

CEE7W 5 built in 1901 2312 to 2316
ex D37 - lookout removed, R Spratt collection


ex D37, no.DW14011, R Spratt collection

2314 converted to Mess & Tool Van 14011

Only 2312 had the guard's lookouts removed.

1946 - 2313

1947 - 2315, 2316

1948 - 2314

1949 - 2312

D38

3 compartment brake third

50' x 8'6

42' wheelbase

CEE7W 10 built in 1901 3435 to 3444 3436 converted to Parcels Van M30 in 1940

1938 - 3443

1939 - 3438, 3439, 3441

1946 - 3435, 3437

1947 - 3436, 3440, 3442

1950 - 3444

D54 and D63

4 compartment centre brake third

48'6 x 8' CAE7N 54 converted from D4 between 1911 and 1918 1723 to 1752

2177 to 2200


D54 at Dawlish ca 1907, © RK Blencowe
distinguishable by the 3 ventillators in the clerestory above the van area.
Originally there was a pair of double doors adjacent to the passenger compartments. Many coaches have an entry in the registers that states "One pair luggage doors fastened up on either side and one ¼ light provided each side of Guards Compartment"

1929 - 1726

1932 - 1723, 1735, 1736, 1746, 2178, 2195, 2199

1933 - 1724, 1728, 1737, 1739, 1743, 2183, 2189, 2194, 2200

1934 - 1725, 1727, 2184, 2192, 2193, 2198

1935 - 1730, 1732, 1734, 2179

1936 - 1731, 1744, 1749, 1750, 2177, 2181, 2188

1937 - 1729, 1742, 1747, 2196

1938 - 1733, 1741, 2180, 2182

1939 - 2187, 2190, 2191

1949 - 2186

No date - 2185

Guards lookouts removed became D63

1932 - 1745, 1748, 1752 1933 - 1738 1937 - 1740 1938 - 1751, 2197

D64

3 compartment brake third

46'6 x 8'

8'6 Dean bogies

CAA12N 30 converted from D3 between 1920 and 1925 1569 to 1581, 1583 to 1598 Converted by converting 3 compartments into a luggage compartment. The original guard/luggage compartment doors were changed to a single door and window. The new luggage compartment had one pair of double doors. 1931 - 1571 to 1579, 1584, 1585, 1588 to 1590, 1592 to 1594, 1596, 1597

1932 - 1569, 1570, 1580, 1581, 1595, 1598

1933 - 1583, 1587

1934 - 1591

1935 - 1586

E1a

5 compartment composite with centre luggage

38'6 x 8'

Built with 7' rigid 'bogies', later converted to 6'4 Dean bogies

29'6 wheelbase (as built)

CAA12B

then

CAE12CN

1 built in 1874 as Broad Gauge Broad Gauge 282

Converted to Standard Gauge (6)965


JN Slinn collection
E1

6 compartment composite with central luggage compartment

45'6 x 8'

Built with 7' rigid 'bogies', later converted to 6'4 Dean bogies

CAA12B

then

CAE12CN

1 built in 1874 as Broad Gauge Broad Gauge BG 283

Converted to Standard Gauge (6)966


JN Slinn collection

E2

6 compartment composite with central luggage compartment

12 built in 1876 as Broad GaugeBroad Gauge 293-304

Converted to Standard Gauge (6)967-75/7/8


JN Slinn collection
E3

6 compartment composite with central luggage compartment

46'6 x 8'

6'4 Dean bogies

8 built in 1876 as Broad Gauge Broad Gauge 305 to 312

Converted to Standard Gauge (6)979 to (6)986


JN Slinn collection
12 built in 1876 as Broad GaugeBroad Gauge 422 to 433

Converted to Standard Gauge (6)995 to (7)1006

4 built in 1882 as Broad GaugeBroad Gauge 414 to 417

Converted to Standard Gauge (6)987 to (6)990

E4

6 compartment composite

46'6 x 8'

Built with 7' rigid 'bogies', later converted to 6'4 Dean bogies

32' wheelbase (as built)

CAA12N 2 built in 1878 (6)580 & (6)581 Originally built with sleeper compartments which were converted to ordinary compartments by the time to diagram index was setup
E5

6 compartment composite with centre brake

46'6 x 8'

Built with 7' rigid 'bogies', later converted to 6'4 Dean bogies

32' wheelbase (as built)

CAA12N 6 built in 1878 (6)982 to (6)587
JN Slinn collection
Originally built with sleeper compartments which were converted to ordinary compartments by the time to diagram index was setup
E6

5 compartment brake composite

40' x 8'

Built with 7' rigid 'bogies', later converted to 6'4 Dean bogies

32' wheelbase (as built)

CAA12B

then

CAE12CN

8 built in 1879 as Broad Gauge Broad Gauge 434 to 439, 444 and 445

Converted to Standard Gauge (7)1007 to (7)1012, (7)1017 and (7)1018


JN Slinn collection


© TL Jones


© WRRC Mike Morton Lloyd 1715, 7007

Compartments are:
1st, 1st, Guard, 2nd, 2nd, 2nd (later 3rd class)


© TL Jones


JN Slinn collection

Wheelbase of narrow gauge conversions varied:

7014 - 28'
7007, 7008, 7018 - 28'10"
7010, 7013, 7017 - 29'
7009, 7011, 7012, 7015, 7016 - 29'6

E7

5 compartment composite with luggage and lavatory

4 built in 1879 as Broad Gauge Broad Gauge 440 to 443

Converted to Standard Gauge (7)1013 to (7)1016

E9 and E123

5 compartment centre brake composite

40' x 8'

Built with 7' Rigid 'bogies' later converted to with 8'6 Dean bogies

32' wheelbase (as built)

CAA9N 8 built in 1880 (6)588 to (6)595
JN Slinn collection


© TL Jones

Recorded as being built "For Manchester traffic".

6592 had 6'4 bogies, wheelbase 29'

6588 to workman's third no. 630 (5 compartments plus 1 large compartment) in 1930

1929 - 6589, 6590

1930 - 6591, 6592

1931 - 6593, 6595

1936 - 630

Guards lookouts removed became E123

1931 - 6594

E10

6 compartment composite with central luggage

46'6 x 8'

Built with 7' rigid 'bogies', later converted to 8'6 Dean bogies

38'6 wheelbase

CAA12N 8 built in 1880 (6)650 to (6)657
JN Slinn collection
E10 and E13 were externally identical. Internally E10 had offset armrests in 1st, whilst E13 had armrests between all seats

6736 to third 650

6737 & 6742 to R&SB 47 & 48. Renumbered 6472 to 6473 when returned

E13

6 compartment composite with central luggage

12 built in 1880 (6)736 to (6)747
© GWR
E11

6 compartment composite with central luggage and lavatory

4 built in 1882 (6)658 to (6)661
JN Slinn collection
E11 and E14 were externally identical. Internally E11 had offset armrests in 1st, whilst E14 had armrests between all seats.

6747 & 6750 to thirds 603 & 602

E14

6 compartment composite with luggage and lavatory

12 built in 1882 (6)748 to (6)755
JN Slinn collection
E12

6 compartment centre brake composite with lavatory

46'6 x 8'

Built with 7' Rigid 'bogies' later probably converted to with 6'4 Dean bogies

34' wheelbase (as built)

CAA12B

then

CAE12CN

4 built in 1882 Broad Gauge 418 to 421

Converted to Standard Gauge (6)991 to (6)994


JN Slinn collection
E15

6 compartment centre brake composite

46'6 x 8'

Built with 7' Rigid 'bogies' later converted to with 6'4 Dean bogies

34' wheelbase (as built) later 33'6

CAA12N 8 built in 1883 (6)756 to (6)763
JN Slinn collection
E16

6 compartment tri composite with central luggage

46'6 x 8'

Built with 7' Rigid 'bogies' later converted to with 6'4 Dean bogies

34' wheelbase (as built) later 33'6

CAA12N 12 built in 1883

10 built in 1885

(6)764 to (6)785

(6)806 to (6)815


JN Slinn collection
E17 and E18

6 compartment composite with luggage and 2 lavatories

46'6 x 8'

6'4 Dean bogies

36' wheelbase

CAE7N 15 built in 1888 (6)848 to (6)862
© HMRS ABW609 - ex camping coach 9969, formerly (6)858


JN Slinn collection

Converted to E18 by removing a seat from the righthand 2 compartments so that all 1st class compartments had access to a toilet.

6850, 6853, 6856, 6858, 6861 & 6862 to Camping coaches 9966 to 9969, 9978 & 9979

E21

6 compartment brake tri composite

48' x 8'

6'4 Dean bogies

38' wheelbase

CAE7N 11 built in 1889 (6)837 to (6)847 6821 had guards projections removed in 1931

Condemned between 1930 and 1936

E22

7 compartment tri composite with central luggage

48' x 8'

6'4 Dean bogies

38' wheelbase

CAE7N 9 built in 1889 (6)828 to (6)836
JN Slinn collection
Condemned between 1932 and 1936
E23

6 compartment brake composite

46'6 x 8'

6'6 Dean bogies

38' wheelbase

CAE7N 6 built in 1890 (6)725 to (6)730
HJ3033


JN Slinn collection

6728 had guards projections removed in 1927

Condemned between 1931 and 1934, except 6728 in 1949

E24

7 compartment brake tri composite (with Double Coupé)

48'6 x 8'

8'6 Dean bogies ?

38' wheelbase

CAE7N 1 built in 1899 as Standard Gauge body on Broad Gauge frame Broad Gauge 566

Converted to Standard Gauge (7)1033


JN Slinn collection


R Spratt collection

Compartments are:
1st(half width), 1st, Lav, Guard & Luggage, 3x 3rd, 2nd, 2nd(half width)

All condemned between 1928 and 1936
E25

7 compartment brake tri composite (with Double Coupé)

48'6 x 8'

6'4 Dean bogies

38' wheelbase

6 built in 1889 as Standard Gauge bodies on Broad Gauge frames

41 built in 1889 in two lots

Broad Gauge 563 to 565, 567, 568

Converted to Standard Gauge (7)1030 to (7)1032, (7)1034, (7)1035

 

(6)732

(7)1301 to (7)1340

E26

6 compartment brake composite

48'6 x 8'

6'4 Dean bogies

38' wheelbase

CAE7N 3 built in 1890 as Standard Gauge bodies on Broad Gauge frames Broad Gauge 572, 573 & 580

Converted to Standard Gauge (7)1039, (7)1040 & (7)1044


JN Slinn collection


R Spratt collection - ex camping coach 9970, formerly (7)1044

Compartments are:
2nd, 2nd, 1st, brake, 1st, 2nd, 2nd

7044 to Camping coach 9970

1911 - 7040

1932 - 7039

1935 - 7044

E27

7 compartment composite with 2 lavatories

46'6 x 8'

6'4 Dean bogies

36' wheelbase

CAE7N 11 built in 1890 as Standard Gauge bodies on Broad Gauge frames Broad Gauge 581 to 591

Converted to Standard Gauge
(7)1050 to (7)1055 &
(7)1045 to (7)1049


JN Slinn collection


© HMRS ABW610 - ex camping coach 9972, formerly (7)1050
Compartments are:
3rd, 3rd, 2nd, 1st, 2 lavatories, 1st, 2nd, 3rd


© M Longridge - ex camping coach 9972

7046, 7050, 7052, 7054 & 7055 to Camping coaches 9971 to 9975

1933 - 7047, 7049, 7053

1934 - 7045, 7051

1935 - 7046, 7050, 7052, 7054, 7055

1936 - 7048

E28

6 compartment composite with luggage and 2 lavatories

48'6 x 8'

6'4 Dean bogies

38' wheelbase

CAE7N 9 built in 1890 Broad Gauge
569 to 571,
574, 575, 579,
613 to 615

Converted to Standard Gauge
(7)1036 to (7)1038,
(7)1041 to (7)1043,
(7)1056 to (7)1058


JN Slinn collection


© Real 25080 - ex camping coach 9980, formerly (7)1043
Compartments are:
1st, 1st, 2 lavatories, 1st, luggage, 2nd, 2nd, 2nd

7043 & 7058 to Camping coach 9980 & 9976

1932 - 7036, 7037, 7042, 7056, 7057

1933 - 7038, 7041

1935 - 7043, 7058

E29, E106 and F4

6 compartment brake tri composite

6 compartment slip tri composite

48'6 x 8'

6'6 Dean bogies

38' wheelbase

CEE7N 6 built in 1890 (7)1291 to (7)1300
JN Slinn collection
All were built with 4 off 3rd, 1 off 1st, 1 off 2nd, but for a short time 1296 had an additional 2nd class compartment as in the diagram.

Some time before 1912, numbers 7293 and 7297 had slip apparatus fitted.  In the 1912 'Programme of Working of Coaches in Through Trains - Working of Slip Coaches' they are listed as 'Double Ended Slips, which I think is in error.  The slip gear was removed some time before the publication of the 1925 programme.

1935 - 7293, 7296

Guards lookouts removed became E106

1924 - 7298

1929 - 7297

1932 - 7291, 7292

1933 - 7300

1935 - 7299

1936 - 7294

Brake third no Guards lookouts 1938 - 705 (ex 7295 converted 1932)
E30

7 compartment brake tri composite with lavatory (Single Coupé)

48'6 x 8'

6'4 Dean bogies

38' wheelbase

CAE7N 6 built in 1890 (6)725 to (6)730
JN Slinn collection
E31

7 compartment brake tri composite with lavatories

46'6 x 8'

6'4 Dean bogies

36' wheelbase

CAE7N 30 built in 1891 (7)1341 to (7)1360
JN Slinn collection
E32

6 compartment composite with luggage and 2 lavatories

48'6 x 8'

6'4 Dean bogies

38' wheelbase

CAE7N 20 built in 1890 (7)381 to (7)400
JN Slinn collection



ex camping coach
Compartments are:
2nd, 2nd, 1st, luggage, 1st, 2 lavatories, 1st, 1st

7390 , 7395, 7397, 7398 & 7400 to Camping coaches 9955 to 9959
E33

6 compartment composite with luggage and 2 lavatories

48'6 x 8'

6'4 Dean bogies

38' wheelbase

CEE7N 20 built in 1891

4 built in 1891

(7)1361 to (7)1380

(7)1401 to (7)1404



Compartments are:
2nd, 2nd, 1st, luggage, 1st, 2 lavatories, 1st, 2nd
7367 to 7370, 7372, 7402 & 7403 to Camping coaches 9950 to 9954, 9960 & 9961
E34

6 compartment composite with luggage and 2 lavatories

48'6 x 8'

6'4 Dean bogies

38' wheelbase

CEE7N 6 built in 1892 (7)1059 to (7)1064
JN Slinn collection
E35

6 compartment brake tri composite with 4 lavatories

54' x 8'6

8'6 Dean bogies

43'8 wheelbase

CEE7W 1 built in 1892 (7)1289
JN Slinn collection
1934 - 7289
E36

6 compartment brake tri composite with 4 lavatories

54' x 8'6

8'6 Dean bogies

46' wheelbase

Royal Clerestory 1 built in 1892 (7)1290
JN Slinn collection
E37

7 compartment tri composite with 2 lavatories

46'6 x 8'

6'4 Dean bogies

36' wheelbase

CEE7N 10 built in 1892 (7)1279 to (7)1288
JN Slinn collection
E39, F6 and F22

6 compartment brake tri composite with 5 lavatories

Falmouth 'coupé'

6 compartment slip tri composite with 5 lavatories

56' x 8'6

8'6 Dean bogies

48' wheelbase

CEE7W 5 built in 1893 (7)1254 to (7)1268
JN Slinn collection
7266 had guards projections removed in 1925.
7255 and 7258 had slip gear fitted became F6

Some time before 1912, numbers 7255 and 7258 had slip apparatus fitted.  The slip gear was removed some time before the publication of the 1925 'Programme of Working of Coaches in Through Trains'.

7258 had guards projections removed became F22

E41, E121 and F7

6 compartment brake tri composite with 5 lavatories

'coupé'

6 compartment slip tri composite with 5 lavatories

56' x 8'6

8'6 Dean bogies

48' wheelbase

CEE7W 10 built in 1895 (7)1228 to (7)1237
JN Slinn collection
Compared to E39, externally E41 has larger windows in the end 1st class compartment; internally the toilet compartments differ.

7230 & 7234 had guards projections removed became E121

7231, 7232 and 7237 had slip gear fitted became F7

Some time before 1912, numbers 7231, 7232 and 7237 had slip apparatus fitted.  With the exception of 7237, the slip gear had been removed some time before the publication of the 1925 'Programme of Working of Coaches in Through Trains'.

E42 and E107

5½ compartment brake tri composite with 5 lavatories

52' x 8'6

8'6 Dean bogies

44' wheelbase

CEE7W 1 built in 1895 (6)715
JN Slinn collection
6715 had guards projections removed became E107

1933 - 6715

E43

7 compartment brake tri composite with 5 lavatories

56' x 8'6

10' Dean bogies

48' wheelbase

CEE7W 1 built in 1895 (6)716
JN Slinn collection
1948 - 6716
E44

6 compartment brake composite with 4 lavatories

56' x 8'6

10' Dean bogies

48' wheelbase

CEE7W 3 built in 1895 (7)1592 to (7)1594
JN Slinn collection
The lavatory adjacent to the guard and luggage compartment was removed from all 3 coaches around 1915.
E45 and F8

6½ compartment brake tri composite with luggage and 5 lavatories

6½ compartment slip tri composite with luggage and 5 lavatories

58' x 8'6

10' Dean bogies

48' wheelbase

CEE7W 10 built in 1896 (7)1238 to (7)1247
© GWR 1238


JN Slinn collection

7242 & 7248 had the toilet at the guards end removed when 2nd class was converted to 3rd class

7238, 7241 and 7243 converted to Slip coaches by installing Slip gear in the guards compartment. All had had it removed by 1925.

All but one were built with steam heating.

E52

6 compartment brake tri composite with luggage and 4 lavatories

56' x 8'6

10' Dean bogies

48' wheelbase

CEE7W 6 built in 1896 (7)1584 to (7)1589
JN Slinn collection
All except 1589 were built with Westinghouse brakes for working over other company routes, all removed in 1929

7584 to 7586 marked "Return to Cardiff" in 1908 for Cardiff to Newcastle service.

E55

7 compartment tri composite with 6 lavatories

54'6 x 8'6

10' Dean bogies

46'6 wheelbase

CEE7W 10 built in 1897 (7)1204 to (7)1213
JN Slinn collection
E57

7 compartment composite with luggage and 6 lavatories

58' x 8'6

10' Dean bogies

48' wheelbase

CEE7W 15 built in 1897

12 built in 1898

5 built in 1899

(7)1189 to (7)1203

(7)1153 to (7)1164

(7)1145 to (7)1149


JN Slinn collection


© Robert Brookman

E60

6 compartment brake tri composite with 5 lavatories

58' x 8'6

10' Dean bogies

48' wheelbase

CEE7W 2 built in 1898 (7)1165 to (7)1166
JN Slinn collection
Built with E61 for the Bournemouth service
E61

6 compartment brake tri composite with 5 lavatories

58' x 8'6

10' Dean bogies

48' wheelbase

CEE7W 2 built in 1898 (7)1167 to (7)1168
JN Slinn collection
Built with E60 for the Bournemouth service

7167 guards lookout removed in 1929

E62

7 compartment composite with 6 lavatories

53' x 8'6

10' Dean bogies

45' wheelbase

CEE7W 15 built in 1898

3 built in 1898

(7)1174 to (7)1188

(7)1150 to (7)1152


JN Slinn collection
The drawing shows that the left hand compartment was originally built as a third class compartment (only 5'6 wide), but that the last 6 coaches ran with it as a second class compartment.


© HMRS

One coach (7183 or 7186) converted to Special Instruction Coach in May 1937

7184 - 1932

7150, 7151, 7152, 7175, 7176, 7177, 7178, 7180, 7185 - 1936

7179, 7183, 7186, 7188 - 1937

7174, 7181, 7187 - 1938

7182 - 1939

E63

6 compartment composite with 6 lavatories

51' x 8'6

10' Dean bogies

43' wheelbase

CEE7W 4 built in 1898 (7)1417 to (7)1420
JN Slinn collection
Built with D28 for the Bournemouth service
E72 and E119

7 compartment brake tri composite with 4 lavatories

58' x 8'6

10' Dean bogies

48' wheelbase

CEE7W 30 built in 1901 in two batches (7)1125 to (7)1144

(7)1115 to (7)1124


JN Slinn collection


© GWR

1907 - 7120

1911 - 7139

Guards lookouts removed became E119

7127 only had 1 projection removed
7131 had 1 projection removed in 1924 and the other in 1926

1937 - 7131

1938 - 7117, 7127

E74

7 compartment luggage tri composite with 4 lavatories

2 first class, 2 second class and 3 third class compartments
58' x 8'6

10' Dean bogies

48' wheelbase

CEE7W 10 built in 1902

6 built in 1903

(6)601 to (6)610

(7)1628 to (7)1633

© L&GRP 17510
Compartments are:
Luggage, 3x 3rd with side corridor, 2x lav, 1st, 1st, 2x lav, 2x 2nd with side corridor
1907 - 6604

1930 - 7631

1931 - 7630

1933 - 6603, 6606, 7628

1934 - 6607

1935 - 6601, 6609, 7629

1936 - 6605, 6608, 6610, 7632, 7633

1940 - 6602

E76

7 compartment brake tri composite with 4 lavatories

2 first class, 2 second class and 3 third class compartments
58' x 8'6

10' Dean bogies

48' wheelbase

CEE7W 5 built in 1904 (7)1110 to (7)1114
F1

6 compartment double slip composite

46'6 x 8'

Built with 7' Rigid 'bogies' later converted to with 6'4 Dean bogies

34' wheelbase (as built) later 33'6

CAA12N 2 built in 1880

4 built in 1882 as Standard Gauge bodies on Broad Gauge chassis

208 & 239 renumbered (7)1073 & (7)1074

BG 480 to 483
(7)1019, (7)1020 & (7)1022
(excluding (7)1021 see F2)


JN Slinn collection


R Spratt collection, 1019

All of these coaches appear in the 1912 'Programme of Working of Coaches in Through Trains - List of Slip Coaches'.   But they are not in the 1925 'Programme of Working of Coaches in Through Trains'.   So the slip gear was removed before 1925.

1930 - 7019, 7022, 7074

1931 - 7020

1932 - 7073

F2

6 compartment double slip composite

46'6 x 8'

Built with 7' rigid 'bogies', later converted to 8'6 Dean bogies

34' wheelbase (as built) later 38'6

CAA7TN 2 built in 1886 209 & 210 renumbered (7)1071 & (7)1072
JN Slinn collection
All of these coaches appear in the 1912 'Programme of Working of Coaches in Through Trains - List of Slip Coaches'.   But they are not in the 1925 'Programme of Working of Coaches in Through Trains'.   So the slip gear was removed before 1925.

1930 - 7021

1932 - 7072

1935 - 7071

CAA12Ngiven 8'6 bogies when converted to Standard Gauge7021
F3

6 compartment slip tri composite

46'6 x 8'

6'6 Dean bogies

36' wheelbase

CAE7N 1 built in 1888 Broad Gauge 494

Converted to Standard Gauge (7)1023


JN Slinn collection
This coach appears in the 1912 'Programme of Working of Coaches in Through Trains - List of Slip Coaches'.   But it does not appear in the 1925 'Programme of Working of Coaches in Through Trains'; so its slip gear had removed by 1925.

1933 - 7023

F5

6 compartment double slip tri composite

50' x 8'

6'4 Dean bogies

39'6 wheelbase

CEE7N 6 built in 1891

4 built in 1894

(7)1065 to (7)1070

(7)1075 to (7)1078


JN Slinn collection
Most coaches had their slip gear removed in 1917 or 1918.

7078 had guard's projections removed at one end only in 1921.

1933 - 7065

1934 - 7070

1935 - 7077

1936 - 7069, 7075

1937 - 7067, 7078

1938 - 7068, 7076

1939 - 7066

F9

6 compartment double slip tri composite

56' x 8'6

10' Dean bogies

CEE7W 6 built in 1897 (7)1079 to (7)1084
JN Slinn collection


R Spratt collection

All of these coaches appear in the 1912 'Programme of Working of Coaches in Through Trains - List of Slip Coaches'.   But they are not in the 1925 'Programme of Working of Coaches in Through Trains'.   So the slip gear was removed by 1925.   7079 & 7080 are recorded to have had the slip gear removed in 1918.

1938 - 7079, 7082, 7084,

1939 - 7080, 7083

1940 - 7081

F10

6 compartment double slip tri composite with 6 lavatories

58' x 8'6

10' Dean bogies

48' wheelbase

CEE7W 4 built in 1897

2 built in 1901

6 built in 1903

(7)1085 to (7)1088

(7)1093 to (7)1094

(7)1095 to (7)1100


JN Slinn collection
The first batch were built for the Folkstone service.

All but 7086, 7093 & 7095 are listed as slip coaches in the 1925 'Programme of Working of Coaches in Through Trains'.

1936 - 7085 to 7087, 7093 to 7097, 7098

1937 - 7099, 7110

1939 - 7088

F11

4 compartment slip composite with lavatories

38'6 x 8'6

6'4 Dean bogies

30' wheelbase

CEE7W 2 built in 1898 (7)089 & (7)090
JN Slinn collection


R Spratt collection

All of these coaches appear in the 1912 'Programme of Working of Coaches in Through Trains - List of Slip Coaches'.  But they are not in the 1925 'Programme of Working of Coaches in Through Trains'. So their slip gear had removed by 1925.

1937 - 7090

1941 - 7089

F12

4 compartment slip composite with lavatories

38'6 x 8'6

7'6 Dean bogies

30' wheelbase

CEE7W 2 built in 1898 (7)091 & (7)092
© Vintage Carriage Trust, no.1091
Same as F11 except built without guard lookouts - viewed from the slip end
All of these coaches appear in the 1912 'Programme of Working of Coaches in Through Trains - List of Slip Coaches'.  But they are not in the 1925 'Programme of Working of Coaches in Through Trains'. So either the slip gear was removed or the coaches had been condemned by 1925.

1936 - 7091, 7092

G30

Composite Saloon

38'6 x 8'

6'4 Dean bogies

28' wheelbase

Royal Clerestory 1 built in 1892 247
renumbered 9043 ca1908


JN Slinn collection
1936 - 9043
G31

First Class Saloon

45'6 x 8'6

8'6 Dean bogies

37'6 wheelbase

CEE7W 2 built in 1896 (8)231 and (8)232
renumbered 9035 & 9036 in 1907

JN Slinn collection
Note the drawing shows the bogies are 10' wheelbase, but if you measure them they are 8'6".

Both had "Saloon" written in the waist panel in October 1930

9035 altered to Bristol Inspection Coach 80971 in 1941.  Moved to Cardiff by 1956 when it was written "District Engineer Cardiff".  Later moved to Newport.   Preserved today on the Pontypool & Blaenavon Railway

1938 - 9036

J1 & J2

First Sleeping Saloon

6 compartments each with 2 beds

46'6 x 9'

6'4 Dean bogies

34' wheelbase

2 built in 1881 as Broad Gauge

Converted to Standard Gauge in 1892

BG 412 & 413
SG (8)244 & (8)245

renumbered 9040 & 9041 in 1907

Converted to Passenger Brake Vans M21 & M19 in 1921 & 1920

Note: After 1907 first class coaches had 8000 added to their number and composites had 6000 added to their number.

Under Construction.  This project is definitely work in progress. If you would like to receive an email when I update these pages please contact me in the Carriage Shed.

© 2018 - Richard Spratt - all rights reserved
GWR Non Corridor Clerestory Coaches -- www.GWRCoaches.org.uk -- Richard Spratt 2018 -